• en

O Norte – Oficina de Criação

Menu principal

Pular para conteúdo
  • Perfil
  • Mídia
  • Portfólio
  • Contato

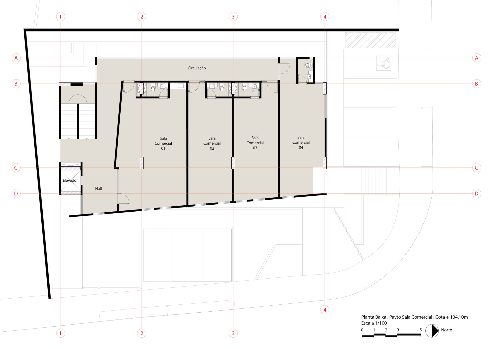
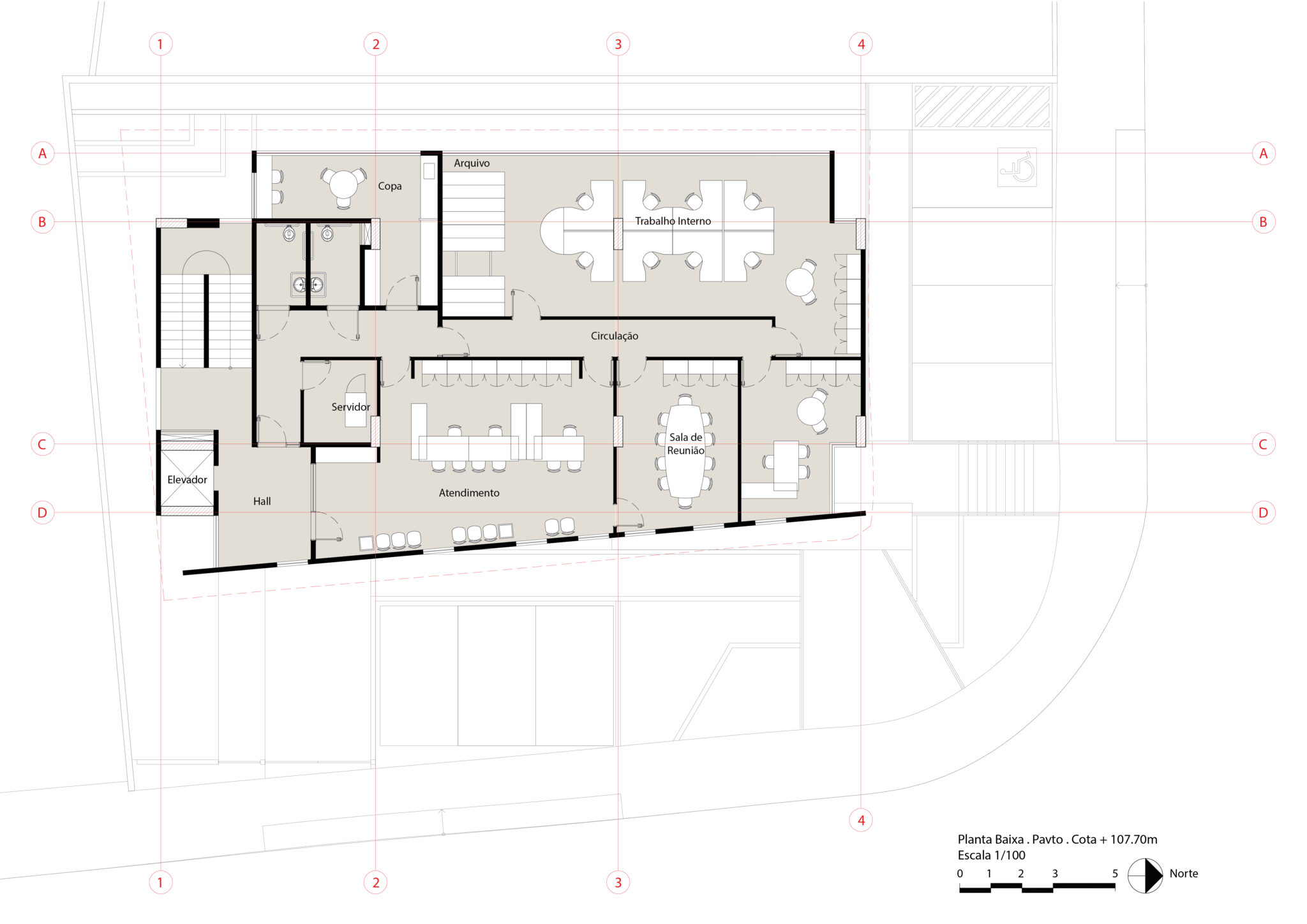
Edifício Multiuso

Arquitetura

Estudo Preliminar para um edifício multiuso com salas, lojas e serviços.
Ano: 2022.

Projeto não construído.

Navegação entre publicações

← Estudo de Viabilidade – Alojamentos no Porto de Suape/PE
Estudo de Viabilidade – Datacenter →